Home
O společnosti
Nabídka nemovitostí
Poradenství a další služby
Kontakt
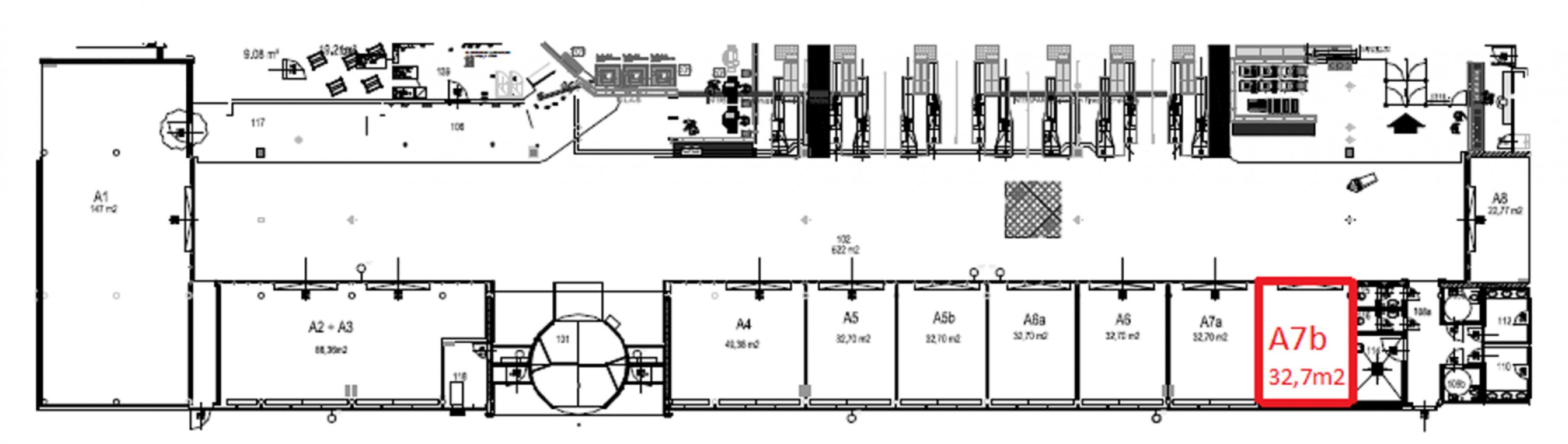
Pronájem jednotky 33m2 v Albertu v Mladé Boleslavi
Fotogalerie
cena v RK
Nabízíme pronájem obchodního prostoru v Albertu v Kosmonosích. Jednotka má velikost 32,7m2, je pravidelného tvaru a je situována naproti kasám potravináře Albert. K dispozici od 1.12.2025.
PDF k tisku
Poslat na e-mail
>
Zpět na nabídky
Celková plocha [m²]
33
Energetická náročnost budovy
G - Mimořádně nehospodárná
Lokalita
Kontaktní osoba
Jakub Vašíček
+420 733 551 828
jvasicek@labartt.com